ZZYP自力式蒸汽减压阀在化工锅炉应用
ZZYP-16B自力式锅炉蒸汽减压阀是不需要任何外加能源,利用被调介质自身能量而自动调节的执行产品。该产品的最大特点就是能在无电、无气的场所使用,同时又节约了能源。压力设定期在一定范围内随意可调。
ZZYP-16B自力式锅炉蒸汽减压阀采用快开流量特性,动作灵敏,调节精度高(误差≤10%);该阀占据空间小(相对于重锤式减压阀),调节简易,因而它广泛用于石油、化工、电力、冶金、食品、轻纺、机械制造、民用建筑等各种设备的气体、液体及蒸汽的减压、稳压(用于阀后调节)。或泄压、稳压(用于阀前调节)。自力式蒸汽调节阀无需外加能源,利用被调介质自身能量为动力源引入执行机构控制阀芯位置,改变两端的压差和流量,使阀前(或阀后)蒸汽压力稳定。具有动作灵敏,密封性好,压力设定点波动力小等优点,广泛适用于石油、化工、冶金、轻工等工业部门及城市供热、供暖系统。

ZZYP自力式蒸汽减压阀在化工锅炉应用结构与原理
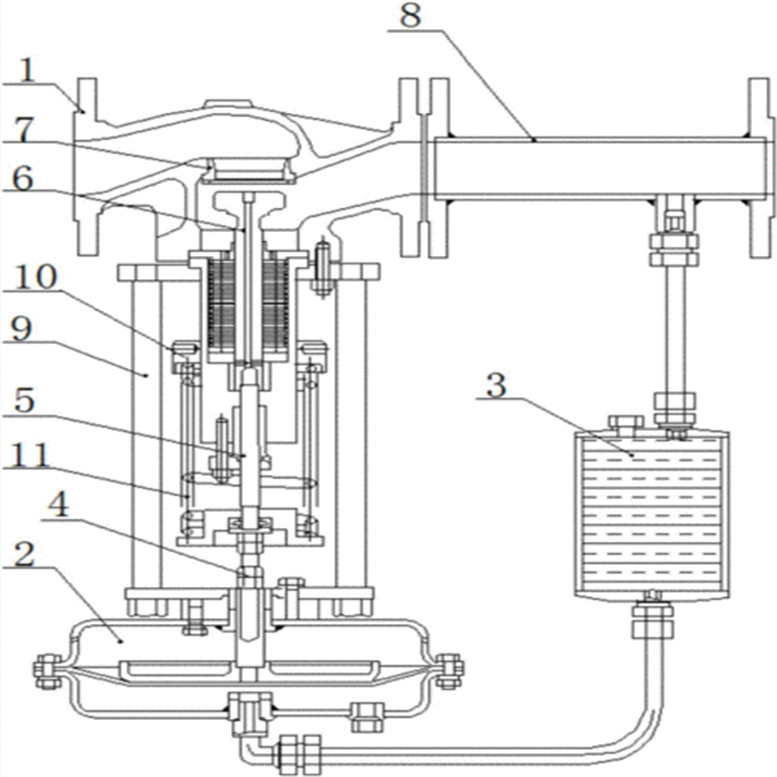
ZZYP-16B自力式锅炉蒸汽减压阀由检测执行机构、阀本体、取压管与阀前(后)接管组成。其结构见图一
图一a、用于控制阀后压力的调压阀,阀作用方式为压闭型。

ZZYP自力式蒸汽减压阀在化工锅炉应用其作用原理如下:
ZZYP-16B自力式锅炉蒸汽减压阀介质由箭头方向流入阀体,经阀座、阀芯节流后输出。另一路经取压管(介质为蒸汽时加冷凝器)被引入执行机构作用于膜片上,使阀芯随之发生相应的位移,达到减压、稳压的目的。如阀后压力增加,作用于膜片上的力增加,压缩弹簧,带动阀芯,使阀门开度减少,直至阀后压力下降至设定值为止。同理,如阀后压力降低,作用在膜片上的力减小,由于弹簧的反作用力,带动阀芯,使阀门的开度加大,直至阀后压力上升至设定值为止。
图一b、用于控制阀前压力的调压阀,阀作用方式为压开型。
其作用原理如下:
介质由箭头方向流入阀体,经阀座、阀芯节流后输出。另一路经取压管(介质为蒸汽时加冷凝器)被引入执行机构作用于膜片上,使阀芯随之发生相应的位移,达到泄压、稳压的目的。如阀前压力增加,作用于膜片上的力增加,压缩弹簧,带动阀芯,使阀门开度增大,直至阀前压力下降至设定值为止。同理,如阀前压力降低,作用在膜片上的力减小,由于弹簧的反作用力,带动阀芯,使阀门的开度加小,直至阀前压力上升至设定值为止。若阀前压力小于设定值则该阀一直是关闭的。

ZZYP自力式蒸汽减压阀在化工锅炉应用使用注意问题
4.1 调节精度
自力式调节阀是由机械的方法组成的纯比例,因此控制的结果不可避免地存在静差。调节精度一般为±5%~±10%。适用于调节品质要求不高的场合。
4.2 允许压差
由于自力式调节阀没有驱动能源,仅靠介质自身的能源(压力阀靠介质压力,液位阀靠介质对浮球的浮力等),而且无法象普通控制阀可通过提高气源压力来增大压差。从而导致允许差压较普通控制阀小,口径也受限制。以洛克阀门有限公司生产的自力式压力调节阀为例,DN80以下的阀允许压差*2.0MPa(PN4.0MPa时),而普通气动控制阀*可达6.4MPa。目前,该公司的自力式压力调节阀*口径为DN300。自力式液位调节阀由于受浮球浮力的限制,允许差压也小,多数生产商对允许差压未作明确,选用时应向生产商咨询。同样原因,自力式液位调节阀口径*做到DN250,对大多数场合已经够用,特殊场合如果流量特别大,可使用两台或多台并联。
4.3 介质黏度
由自力式压力调节阀原理和结构特点知,介质黏度过高容易引起引压管的堵塞,影响膜片的弹性,导致阀内压力平衡元件不能正常工作。特别是凝固点较高的介质在停工降温后凝固也将使波纹管开工后无法正常工作。国内厂家的产品样本未见介质允许黏度推荐值。国外已有厂家推荐在液体情况下允许使用介质运动黏度为7×10-4m2/s和8×10-4m2/s。在河南油田,个别阀运用在稠油介质,黏度在2×10-4m2/s左右。
高黏度的介质可选用重锤平衡自力式压力调节阀。

根据各种工艺场合的需要有三种阀内件形式:
ZZYP(单座自力式压力调节阀);ZZYM(套筒自力式压力调节阀);ZZYN(双座自力式压力调节阀)。用户可根据工况(压差、温度、介质状态)和泄漏量要求来选择。
ZZYP-16B自力式锅炉蒸汽减压阀根据各种工艺场合的需要有三种阀盖型式:
普通(一般场合)、长颈(压力调节范围大)、散热(温度350~550℃)。
ZZYP-16B自力式锅炉蒸汽减压阀根据各种工艺场合的需要有三种执行机构型式:
膜片(普通膜片和增强膜片)、活塞、金属膜片(波纹管)。

ZZYP自力式蒸汽减压阀在化工锅炉应用特点:
◇ 自力式压力调节阀无需外加能源,能在无电无气的场所工作,既方便又节约了能源。
◇ 压力分段范围细且互相交叉,调节精度高。
◇ 压力设定值在运行期间可连续设定。
◇ 对阀后压力调节,阀前压力与阀后压力之比可为10:1~10:8。
◇ 橡胶膜片式检测,执行机构测精度高、动作灵敏。
◇ 采用压力平衡机构,使调节阀反应灵敏、控制精确。
|
序号 |
品 名 |
型 号 及 规 格 |
单位 |
数量 |
|
1 |
减压阀 |
自力式蒸汽减压阀ZZYP-16B PN16 DN80 介质:蒸汽, 最大流量5T/H 进口压力 0.85MPA,出口压力0.6MPA |
台 |
1 |


ZZYP自力式蒸汽减压阀在化工锅炉应用主要零件材料
| 零件名称 | 材料 |
| 阀体 | ZG230-450、ZG0Cr18Ni9Ti、ZG0Cr18Ni12Mo2Ti |
| 阀芯 | 1Cr18Ni9、0Cr18Ni12Mo2Ti(堆焊Stellite)、PTFE |
| 阀座 | 1Cr18Ni9、0Cr18Ni12Mo2Ti(堆焊Stellite) |
| 阀杆 | 1Cr18Ni9、0Cr18Ni12Mo2Ti |
| 橡胶膜片 | 丁腈、乙炳、氟、耐油橡胶或0Cr18Ni9Ti |
| 膜盖 | Q235、Q235涂PTFE |
| 填料 | 聚四氟乙烯、柔性石墨 |
ZZYP自力式蒸汽减压阀在化工锅炉应用主要技术参数及性能指标

| 公称通径DN(mm) | 20 | 25 | 32 | 40 | 50 | 65 | 80 | 100 | 125 | 150 | 200 | 250 | 300 | |
| 额定流量系数KV | 5 | 8 | 12.5 | 20 | 32 | 50 | 80 | 125 | 160 | 320 | 450 | 630 | 900 | |
| 额定行程(mm) | 8 | 10 | 12 | 15 | 18 | 20 | 30 | 40 | 45 | 60 | 65 | |||
| 公称通径DN(mm) | 20(或G3/4″) | |||||||||||||
| 阀座直径 | 2 | 3 | 4 | 5 | 6 | 7 | 8 | 9 | 10 | 12 | 15 | 20 | ||
| 额定流量系数KV | 0.02 | 0.08 | 0.12 | 0.20 | 0.32 | 0.5 | 0.80 | 1.20 | 1.80 | 2.80 | 4.0 | 5 | ||
| 公称压力 PN | MPa | 1.6,2.5,4.0,6.4(6.3)/2.0,5.0,11.0 | ||||||||||||
| Bar | 16,25,40,64(63)/20,50,110 | |||||||||||||
| Lb | ANSI:Class150、Class300、Class600 | |||||||||||||
| 压力分段范围KPa | 15~50、40~80、60~100、80~140、120~180、160~220、200~260、 240~300、280~350、330~400、380~450、430~500、480~560、 540~620、600~700、680~800、780~900、880~1000、900~1200、 1000~1500、1200~1600、1300~1800、1500~2100、(其它范围特殊设计) |
|||||||||||||
| 流量特性 | 快开 | |||||||||||||
| 调节精度 | ±5-10(%) | |||||||||||||
| 使用温度 | -60~350(℃)(低于-60特殊设计) 350~550(℃) | |||||||||||||
| 允许泄漏量 | Ⅳ级(硬密封) Ⅵ级(软密封) (GB/T4213-92) | |||||||||||||
| 减压比(阀前压力/阀后压力) | 1.25~10(超过此范围特殊设计) | |||||||||||||
1、压力调节范围的确定:
压力调节范围的确定见上表,控制压力应尽量选在中间期附近,压力范围设定越小,精度越高,因此不要人为扩大压力设定范围。
2、对控制阀后的自力式而言,若阀前后压差比超过10这个范围,建议用多级减压阀或二个自力式串联(阀前压力小于0.8Mpa除外,例如指挥器操作式)。
3、公称压力若超过6.4Mpa,须特殊设计。
4、1kgf/cm2=100KPa。

□ZZYP自力式蒸汽减压阀在化工锅炉应用外形尺寸及重量
| 公称通径 (DN) | 20 | 25 | 32 | 40 | 50 | 65 | 80 | 100 | 125 | 150 | 200 | 250 | 300 | ||
| 接管长度(B) | 383 | 512 | 603 | 862 | 1023 | 1380 | 1800 | 2000 | 2200 | ||||||
| 法兰面距L(Pn16、25、40) | 150 | 160 | 180 | 200 | 230 | 290 | 310 | 350 | 400 | 480 | 600 | 730 | 850 | ||
| 法兰面距L(PN64) | 230 | 260 | 300 | 340 | 380 | 430 | 500 | 550 | 650 | 775 | 900 | ||||
| 压 力 调 节 范 围 KPa |
15~140 | H | 475 | 520 | 540 | 710 | 780 | 840 | 880 | 940 | 950 | ||||
| A | 280 | 308 | |||||||||||||
| 120~300 | H | 455 | 500 | 520 | 690 | 760 | 800 | 870 | 900 | 950 | |||||
| A | 230 | ||||||||||||||
| 280~500 | H | 450 | 490 | 510 | 680 | 750 | 790 | 860 | 890 | 940 | |||||
| A | 176 | 194 | 280 | ||||||||||||
| 480~1000 | H | 445 | 480 | 670 | 740 | 780 | 780 | 850 | 880 | 930 | |||||
| A | 176 | 194 | 280 | ||||||||||||
| 重量(Kg)以PN16为例 | 26 | 37 | 42 | 72 | 90 | 112 | 130 | 169 | 285 | 495 | 675 | ||||
□ZZYP自力式蒸汽减压阀在化工锅炉应用安装方式

ZZYP-16B自力式锅炉蒸汽减压阀在气体或低粘度液体介质中使用时,通常ZZY型自力式压力调节阀为直立安装在水平管上,当位置空间不允许时才倒装或斜装。(当确认介质很洁净时,件3可不安装)
2、阀在蒸汽或高粘度液体介质中使用时,通常ZZY型自力式压力调节阀为倒立安装在水平管上
安装时,应注意以下几点:
(1)冷凝器应高于调压阀的执行机构而低于阀前后接管。使用前冷凝器应灌满冷水,以后约3个月灌水一次。
(2)取压点应取在调压阀适当位置,阀前调压应大于2倍管道直径,阀后调压应大于6倍管道直径。
(3)为便于现场维修及操作,调压阀四周应留有适当空间,阀前后应设置截止阀与旁路手动阀
(4)调压阀通径过大(DN≥100时),应有固定支架
(5)当确认介质很洁净时,件3可不安装
(6)自力式阀可以比管道通径小,但过滤器和截止阀不能

ZZYP自力式蒸汽减压阀在化工锅炉应用压力调整方法
见图一(a,b,c)中。自力式压力调节阀在出厂前已按设定值调整好,但用户希望改变设定值,或由于某种原因实际指示值偏离设定值时,可以用调节棒转动件7(调节盘),顺时针方向转动压力降低,反顺时针方向转动压力升高。
ZZYP-16B自力式锅炉蒸汽减压阀连接尺寸及标准
·法兰按GB/T9113-2000(默认标准)
也可按JB/T79.194,JB/T79.2-94,或HG20592~HG20635-97
·法兰密封面型式:PN16为凸面法兰;PN25为凸面法兰
PN40、PN64(63)为凹凸面法兰,阀体为凹面法兰
·法兰端面距按GB12221-89(其它标准须指明)
·执行机构信号接口:内螺纹M16×1.5
·阀体法兰及法兰端面距离可以按用户的标准制造,如ANSI,JIS,DIN等

ZZYP自力式蒸汽减压阀在化工锅炉应用订货须知
| 阀门型号 | 阀门名称 | ||
| 公称通径(mm) | √ | 公称压力(MPa) | √ |
| 压力调节范围(Mpa) | 控制阀前还是阀后 | √ | |
| 压力设定值(Mpa) | √ | 介质名称 | √ |
| 执行机构型式 | 介质工作温度 | √ | |
| 额定流量系数 | 介质状态 | √ | |
| 阀前最大压力(MPa) 阀前最小压力(MPa) 阀前正常压力(MPa) |
阀前最大压力(MPa) 阀前最小压力(MPa) 阀前正常压力(MPa) |
||
| 最大流量 最小流量 正常流量 |
液体粘度 液体密度 气体密度 |
||
| 材质:阀体 阀内件 |
泄漏量等级要求 (GB/T4213-92) |
||
| 工艺管道尺寸 | √ | 耐蚀要求 | |
| 法兰面距(mm)L | 法兰执行标准 | ||
| 所配附件 | 冷凝器、接管、配法兰、紧固件、调压棒、取压管、取压接头 | ||
注:带“√”的必须填!
本文地址: https://www.xsyiq.com/48071.html
网站内容如侵犯了您的权益,请联系我们删除。